Показати всі категорії
| Основні характеристики | ||
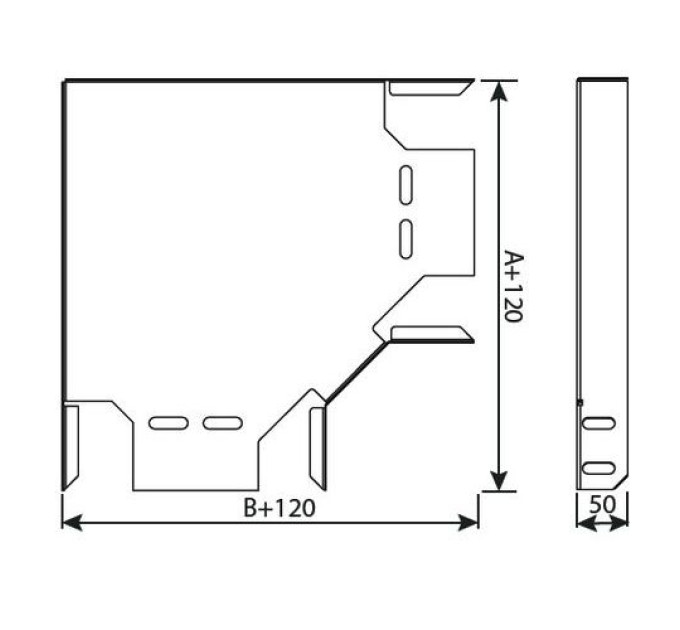
| Вид продукту | Поворот | |
| Спосіб обробки | горячее цинкование | |
| Товщина, мм | 0.50 | |
| Ширина сумісного лотка, мм | 50 | |
| Висота, мм | 50 | |
| Ширина, мм | 50 | |
| Матеріал | сталь | |


